למידע חייגו 04-8580888
TR H1 W3 (H1-W3)

TR H1 W3 (H1-W3)

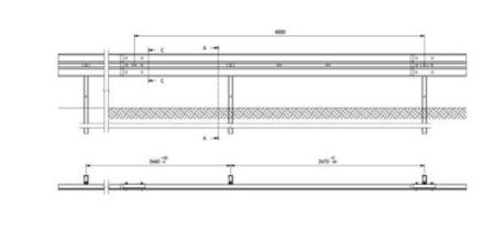
מעקה פלדה חד -צדדי, בגובה 75 ס"מ, רוחב 20 ס"מ, ציפוף עמודים – 2.67 מ'.

למעקה עמודי C באורך 1.6 מ', בתוספת אלמנט חיזוק עם פרופיל U באורך 25 ס"מ  , 15 ס"מ מעל לקרקע , קורה דו-גלית שטוחה, ורכיבי חיבור.

מותקן בנעיצה.

קטע הנמכה ועיגון באורך 16 מ', כאשר 8 מ' הראשונים בתוספת 5 זוגות של קורות אלכסוניות.

המעקה  עומד לרמות תפקוד N2-W2-A , H1-W3-A-VI4 .

מעוניין במוצר זה? צור עמנו קשר
תמיד כאן בשבילכם | צרו איתנו קשר
לייעוץ ומידע מלאו פרטים ונחזור אליכם